Ngành nghề thu hút đầu tư: Công nghiệp điện, điện tử, điện lạnh, cơ khí, công nghiệp chế biến nông lâm sản, thực phẩm, vật liệu xây dựng cao cấp, công nghiệp sản xuất bao bì, sản xuất hàng tiêu dùng, công nghiệp nhẹ và các ngành công nghiệp sạch khác.
Khu Công nghiệp Minh Quang nằm tại Km32 Quốc lộ 5, điểm kết nối thuận tiện tới Hà Nội, Hải Dương, Hải Phòng, các trung tâm kinh tế trọng điểm của miền Bắc
Cách trung tâm thành phố Hà Nội 35km
Cách sân bay Quốc tế Nội Bài 58km
Cách cảng Hải Phòng 65km
Cách cảng nước sâu Quảng Ninh 105km
2. CƠ SỞ KỸ THUẬT HẠ TẦNG KHU CÔNG NGHIỆP MINH QUANG
Hệ thống cấp điện: Công suất 120MVA.
Hệ thống cấp nước: Nhà máy cấp nước sạch được xây dựng với tổng công suất 5.500 m3/ngày đêm.
Xử lý nước thải: Nhà máy xử lý nước thải được xây dựng với với công suất 2.000 m3/ngày đêm.
Điện thoại & Internet: Hệ thống viễn thông đạt tiêu chuẩn quốc tế và luôn sẵn có nhằm đáp ứng nhu cầu thông tin liên lạc, truyền dữ liệu tốc độ cao và dịch vụ bưu điện trong nước và quốc tế. Hệ thống cáp quang ngầm được đấu nối trực tiếp đến hàng rào từng doanh nghiệp.
Phòng cháy chữa cháy: Hệ thống cấp nước với các họng nước cứu hoả được bố trí dọc các tuyến đường Khu công nghiệp.
Hình ảnh Khu Công nghiệp Minh Quang
3. NGÀNH NGHỀ THU HÚT VÀ ƯU ĐÃI ĐẦU TƯ TẠI KCN MINH QUANG
Các ngành nghề ưu tiên thu hút:
Sản xuất, lắp ráp linh kiện, thiết bị điện, điện tử, điện lạnh, viễn thông, các sản phẩm từ công nghệ mới, kỹ thuật cao;
Cơ khí chế tạo; sản xuất, lắp ráp máy móc, thiết bị, ô tô, mô tô, sản phẩm từ kim loại đúc sẵn; đồ kim hoàn;
Sản xuất, chế biến nông, lâm sản, thực phẩm, đồ uống, thức ăn chăn nuôi (không bao gồm giết mổ gia súc, gia cầm);
Sản xuất sản phầm từ giấy, gỗ, nhựa, cao su, chất dẻo;
Sản xuất dược phẩm, mỹ phẩm, sơn, bao bì, in, thêu, nhãn mác, vật liệu xây dựng, gốm sứ, thủy tinh, dệt may (không bao gồm nhuộm), da giày (không bao gồm thuộc da), thiết bị nội thất, nhà bếp, phụ gia bê tông, hóa chất môi trường, vật liệu phủ, chất tẩy rửa;
Dịch vụ Logistics
Các ưu đãi khi Doanh nghiệp đầu tư tại Khu Công nghiệp Minh Quang
Thuế TNDN: theo quy định của nhà nước
Miễn thuế xuất nhập khẩu đối với hàng hóa nhập khẩu để gia công cho phía nước ngoài, hàng hóa nhập khẩu để tạo tài sản cố định, nguyên liệu vật tư bán thành phẩm trong nước chưa sản xuất được.
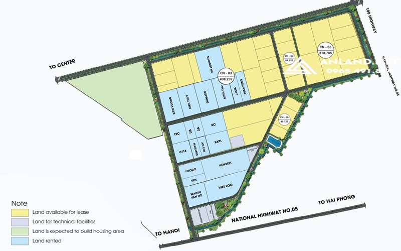
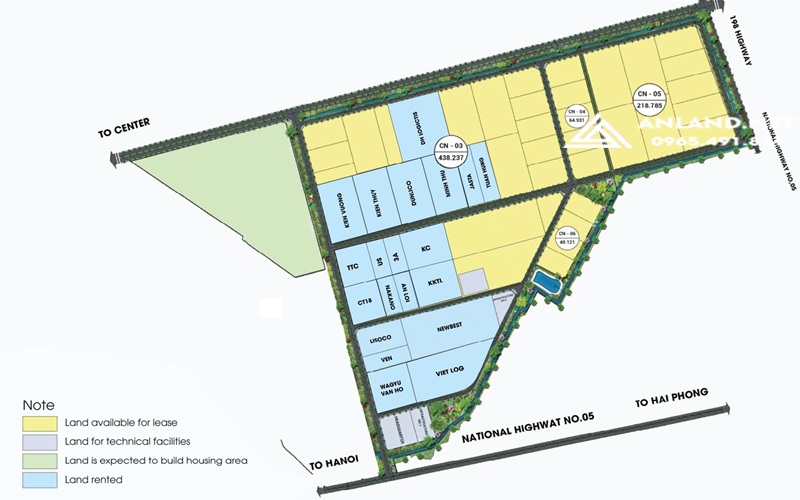
Mặt bằng Khu Công nghiệp Minh Quang
4. CHI PHÍ ĐẦU TƯ TRONG KHU CÔNG NGHIỆP MINH QUANG
Giá thuê cơ sở hạ tầng: 130 USD/m2 tùy từng vị trí
Phí quản lý: 0,5 USD/m2/năm; trả tiền hàng năm
Giá nước sạch, giá điện: theo giá của đơn vị cung cấp tại thời điểm tính
Xử lý nước thải: 0,5 USD/m3
Hình ảnh Khu Công nghiệp Minh Quang
5. THÔNG TIN LIÊN HỆ:
Quý đối tác có nhu cầu thuê đất mở nhà máy sản xuất tại Khu Công nghiệp Minh Quang, tỉnh Hưng Yên hoặc các khu vực khác, xin vui lòng liên hệ:
Đơn vị xúc tiến đầu tư: ANLAND Website: anland.net Hotline: 0965.491.861 Xem thêm danh sách các bất động sản công nghiệp khác tại đây