Cụm công nghiệp Trác Văn nằm ở vị trí giao thoa của các tuyến giao thông chiến lược của tỉnh Hà Nam, là cửa ngõ phía Nam thủ đô Hà Nội, thuận lợi kết nối với các tỉnh lân cận.
Cách trung tâm thành phố Hà Nội khoảng 60km;
Cách sân bay quốc tế Nội Bài khoảng 90km;
Tiếp giáp đường Tránh quốc lộ 38B;
Cách lối lên cao tốc Hà Nội – Ninh Bình khoảng 6km;
Cách cảng Yên Lệnh trên sông Hồng khoảng 2km;
Tuyến đường thủy từ Cảng Yên Lệnh đến cảng Hải Phòng khoảng 130km;
Cách cảng Hải Phòng khoảng 100km;
Cách cảng Cái Lân – Quảng Ninh khoảng 140km;
Cách ga Đồng Văn khoảng 10km.
Vị trí Cụm Công nghiệp Trác Văn
2. CƠ SỞ HẠ TẦNG CỤM CÔNG NGHIỆP TRÁC VĂN
Đường nội khu: đường khu trung tâm rộng 38m, đường nhánh rộng 20,5m
Cấp nước: công suất hiện trạng là 5.300 m3/ngày đêm, dự kiến đến năm 2030 được mở rộng công suất lên đến 10.000 m3/ngày đêm thông qua đường ống cấp nước quy hoạch D200 trên tuyến QL38B
Cấp điện: Nguồn điện được cung cấp liên tục và ổn định từ trạm biến áp 110/35 KV đặt tại KCN Hòa Mạc, thị xã Duy Tiên, tỉnh Hà Nam. Mạng lưới điện được cung cấp dọc theo các đường giao thông nội bộ trong cụm công nghiệp. Doanh nghiệp đầu tư và xây dựng trạm hạ thế tùy theo công suất tiêu thụ.
Xử lý nước thải: Trạm XLNT công suất 1.600 m3/ngày đêm với công nghệ xử lý nước hóa lý kết hợp sinh học. Nước thải từ CCN Trác Văn sau khi được xử lý đạt chuẩn cột A QCVN 40:2011/ BTNMT.
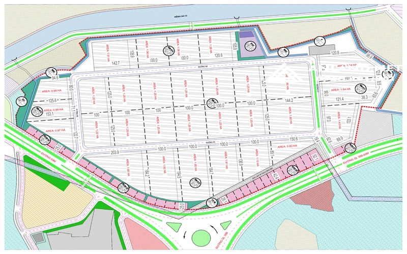
Mặt bằng sử dụng đất Cụm Công nghiệp Trác Văn
3. NGÀNH NGHỀ THU HÚT TẠI CỤM CÔNG NGHIỆP TRÁC VĂN
Các ngành nghề thu hút tại Cụm công nghiệp Trác Văn:
Công nghiệp điện, điện tử, lắp ráp
Cơ khí, chế tạo máy
Sản xuất hàng tiêu dùng
Công nghiệp chế biến thực phẩm
Công nghiệp nhẹ, may mặc, gia công
Công nghiệp phụ trợ và công nghệ cao
Năng lượng và vật liệu….
Các doanh nghiệp đầu tư vào Cụm công nghiệp Trác Văn được hưởng các ưu đãi như sau:
Thuế TNDN: theo quy định của nhà nước
Thuế nhập khẩu: theo quy định của nhà nước Chủ đầu tư cam kết đồng hành cùng với Doanh nghiệp trong quá trình đăng kí các thủ tục hành chính cũng như liên kết các đơn vị hỗ trợ, nhằm rút ngắn thời gian và tăng hiệu quả đầu tư dự án
Phối cảnh Cụm Công nghiệp Trác Văn
4. CHI PHÍ ĐẦU TƯ TRONG CỤM CÔNG NGHIỆP TRÁC VĂN
Phí quản lý: 0.7 USD/m2/năm
Giá nước sạch: theo giá của nhà cung cấp
Xử lý nước thải: 0.5 USD/m3
Giá điện: được tính theo quy định của EVN
Cước viễn thông được tính theo giá của nhà cung cấp viễn thông tại thời điểm lắp đặt.
Ảnh thực tế Cụm Công nghiệp Trác Văn
5. THÔNG TIN LIÊN HỆ:
Quý đối tác có nhu cầu thuê đất mở nhà máy sản xuất tại Cụm công nghiệp Trác Văn, tỉnh Ninh Bình vui lòng liên hệ:
Đơn vị xúc tiến đầu tư: ANLAND Website: anland.net Hotline: 0965.491.861 Xem thêm danh sách các bất động sản công nghiệp khác tại đây