Tên: Cụm Công nghiệp Xuân Phương (Le Mont Xuân Phương)
Vị trí: Xã Phú Bình, tỉnh Thái Nguyên
CĐT: Công ty Cổ phần Đầu tư Le Mont
Quy mô: 74 ha
Thời gian vận hành: 50 năm (2021 – 2071)
Ngành nghề thu hút đầu tư: Điện, Điện tử, Cơ khí, Chế biến nông lâm sản, Sản xuất hàng tiêu dung, May mặc, Tiểu thủ công nghiệp, Sản xuất và chế biến thực phẩm, đồ uống, Dược phẩm, thiết bị y tế, Bao bì, Nhà xưởng cho thuê…
Dự án nằm trên đường vành đai 5, kết nối đườn giao thông Cụm Công nghiệp với đường cao tốc Hà Nội – Thái Nguyên và Quốc lộ 37
Cách trung tâm thủ đô Hà Nội 70km
Cách sân bay Quốc tế Nội Bài 50km
Cách cửa khẩu Hữu Nghị 150km
Cách cảng Hải Phòng 175km
Gần các ga đường sắt Lưu Xá và Chí Quan Triều
Vị trí CCN Le Mont Xuân Phương
2. CƠ SỞ KỸ THUẬT HẠ TẦNG CCN LE MONT XUÂN PHƯƠNG
Giao thông nội bộ: trục đường chính rộng 41m, các đường nhánh rộng 20 – 30m
Hệ thống điện:Lưới điện 22kV đảm bảo cung cấp điện đầy đủ cho các doanh nghiệp
Hệ thống cấp nước:Nhà máy nước sạch công suất 3.000m3/ ngày đêm
Hệ thống xử lý nước thải: Nhà máy xử lý nước thải trong CCN công suất 2.200m3/ ngày đêm. Nước sau khi xử lý đạt chuẩn cột A trước khi ra môi trường
Hệ thống PCCC: Hệ thống ống nước phòng cháy chạy ngầm khắp các tuyến đường, đến từng hàng rào lô đất. Các trụ cứu hỏa được bố trí khoảng cách trung bình 150m/ trụ
An ninh khu vực chung 24/7. Camera giám sát. Hệ thống viễn thông hiện đại
Hình ảnh CCN Le Mont Xuân Phương
3. NGÀNH NGHỀ THU HÚT VÀ ƯU ĐÃI ĐẦU TƯ TẠI CCN LEMONT XUÂN PHƯƠNG
CCN Xuân Phương ưu tiên các ngành nghề có dây chuyền công nghệ hiện đại, thân thiện và bảo vệ môi trường:
Cơ khí chính xác, chế tạo máy, phụ tùng ô tô, xe máy
Điện, điện tử, lắp ráp linh kiện
Dược phẩm, thiết bị y tế
Chế biến gỗ và các sản phẩm từ gỗ
Bao bì
Kho vận và nhà xưởng cho thuê
Ưu đãi đầu tư:
Thuế TNDN: theo quy định của Nhà nước
Thuế nhập khẩu: miễn thuế nhập khẩu đối với hàng hóa, nguyên liệu tạo tài sản cố định trong doanh nghiệp
Miễn thuế chuyển tiền qua nước ngoài
Hỗ trợ cấp phép đầu tư, các thủ tục thành lập doanh nghiệp
Kết nối tuyển dụng
Hình ảnh CCN Le Mont Xuân Phương
4. CHI PHÍ ĐẦU TƯ TRONG CCN LE MONT XUÂN PHƯƠNG
Chi phí thuê hạ tầng: từ 110 USD/m2; đất trả tiền 1 lần
Phí quản lý: 0,55 USD/m2/năm; trả tiền hàng năm
Phí xử lý nước thải:
Giá nước sạch, giá điện: theo đơn giá của nhà cung cấp tại thời điểm sử dụng
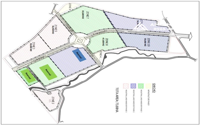
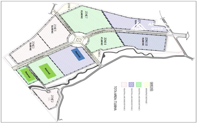
Mặt bằng CCN Le Mont Xuân Phương
5. THÔNG TIN LIÊN HỆ:
Quý đối tác có nhu cầu thuê đất mở nhà máy sản xuất tại Cụm Công nghiệp Le Mont Xuân Phương, tỉnh Thái Nguyên hoặc các khu vực khác, xin vui lòng liên hệ:
Đơn vị xúc tiến đầu tư: ANLAND Website: anland.net Hotline: 0965.491.861 Xem thêm danh sách các bất động sản công nghiệp khác tại đây