Cụm Công nghiệp Jutech địa chỉ tại Km2, ĐT398, huyện Hiệp Hòa (cũ), nằm gần QL18 và QL37. Phía Bắc giáp đường vành đai 4, dễ dàng kết nối tới các trọng điểm kinh tế lớn miền Bắc:
Cách trung tâm thành phố Bắc Giang 30km
Cách trung tâm thủ đô Hà Nội 50km
Cách sân bay Quốc tế Nội Bài chỉ 20km
Cách cửa khẩu Hữu Nghị – Lạng Sơn 140km
Cách cảng Hải Phòng 110km
Vị trí Cụm Công nghiệp Jutech
2. CƠ SỞ HẠ TẦNG CỤM CÔNG NGHIỆP JUTECH
Cuối năm 2024, Cụm Công nghiệp Jutech đã hoàn thành công tác giải phóng mặt bằng và xây dựng cơ sở hạ tầng cơ bản, sẵn sàng bàn giao mặt bằng cho doanh nghiệp xây dựng. Hệ thống cơ sở hạ tầng đồng bộ, bao gồm:
Đường nội khu: Hệ thống đường nội khu rộng 20 – 40m
Cấp nước: Hệ thống cấp nước sạch công suất 7.500 m3/ngày đêm.
Cấp điện: Công suất hiện tại 40MVA, có thể nâng cấp lên 2x63MVA.
Xử lý nước thải: Công suất 1.200m3/ ngày đêm
Hệ thống phòng cháy chữa cháy: Hệ thống vòi chạy ngầm 100% trên toàn khu – Áp lực: 5-7 vòi
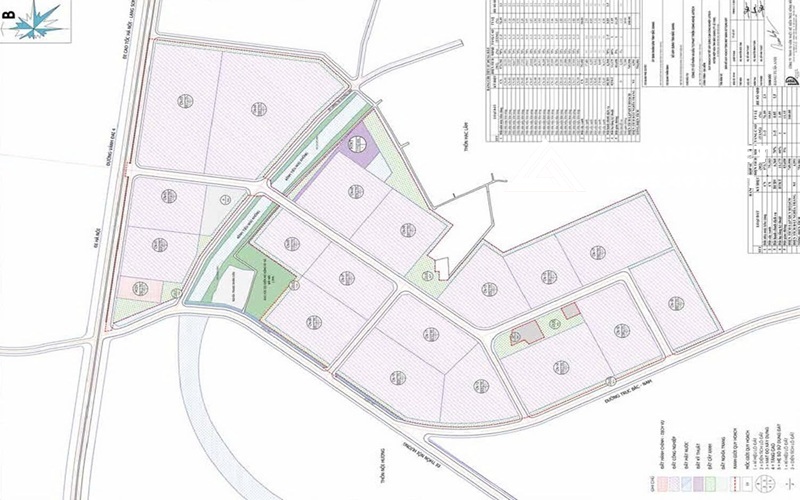
Mặt bằng sử dụng đất Cụm Công nghiệp Jutech
3. NGÀNH NGHỀ THU HÚT VÀ ƯU ĐÃI ĐẦU TƯ TẠI CỤM CÔNG NGHIỆP JUTECH
Các ngành nghề thu hút tại Cụm Công nghiệp Jutech:
– Công nghiệp cơ khí chế tạo, thiết bị điện, sản phẩm công nghệ cao, may mặc, máy móc thiết bị xây dựng, thiết bị y tế;
– Các ngành công nghiệp hỗ trợ;
– Sản xuất, chế biến thực phẩm;
– Sản xuất đồ uống;
– Sản xuất da và các sản phẩm có liên quan;
– Sản xuất bao bì,bao bì nhựa , bao bì giấy …
– Dệt , may , may công nghiệp …
– Chế biến gỗ và sản xuất sản phẩm từ gỗ, tre, nứa;
– Sản xuất thuốc, hóa dược và dược liệu;
– Sản xuất sản phẩm từ cao su, plastic;
– Sản xuất sản phẩm điện tử, máy vi tính và sản phẩm quang học
– Sản xuất máy chuyên dụng
– Công nghiệp chế biến, chế tạo khác
– Cho thuê kho nhà xưởng phục vụ sản xuất
Ưu đãi cho Doanh nghiệp khi đầu tư tại Cụm Công nghiệp Jutech:
Thuế TNDN: theo quy định của nhà nước
Miễn tiền thuê đất 7 năm
Miễn thuế nhập khẩu đối với hàng hóa tạo tài sản cố định
Miễn giấy phép xây dựng theo quy định của pháp luật
Hạ tầng Cụm Công nghiệp Jutech
4. CHI PHÍ ĐẦU TƯ TRONG CỤM CÔNG NGHIỆP JUTECH
Phí quản lý: 0,5 USD/m2/năm
Giá điện, nước: theo giá của đơn vị cung cấp
Xử lý nước thải: 0,5 USD/m3
Thuê đất hàng năm: 8.500đ/m2/năm
Hạ tầng Cụm Công nghiệp Jutech
5. THÔNG TIN LIÊN HỆ:
Quý đối tác có nhu cầu thuê đất mở nhà máy sản xuất tại Cụm Công nghiệp Jutech, tỉnh Bắc Ninh vui lòng liên hệ:
Đơn vị xúc tiến đầu tư: ANLAND Website: anland.net Hotline: 0965.491.861 Xem thêm danh sách các bất động sản công nghiệp khác tại đây